Individuelle 2,5 Zimmer-Wohnung am Isar-Hochufer in Grünwald
Objektbeschreibung
Renoviert für den Single oder ein Paar
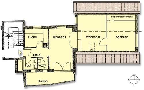
Diese lichtdurchflutete 2,5-Zimmer-Wohnung im 1. Obergeschoss besticht durch den ca. 40 m² großen verbundenen Wohn-Essbereich und wurde zur Neuvermietung renoviert. Der halbe Wohnbereich mit Schrägen reicht bis unter das Dach und hat somit eine attraktive Raumhöhe. Das zum Osten liegende Schlafzimmer, welches nur durch das Wohn-/Esszimmer erreichbar ist, bietet ebenfalls durch die Raumhöhe ein angenehmes Wohngefühl. Vom Essbereich gelangen sie auf den großzügig ca. 12 m² großen Südbalkon. Küche, Bad und separates WC sind mit Fenster ausgestattet.
Ein abgeschlossener Kellerraum und ein Pkw-Abstellplatz vor dem Haus runden dieses Angebot ab.
Das Anwesen ist ausgesprochen gepflegt.
Lagebeschreibung
Wohnen im Grünen
Diese sonnige 2,5-Zimmer-Wohnung liegt am wunderschönen Isar-Hochufer in einer kleinen Anliegerstraße. Die sanierte Wohnanlage mit neuen Fenstern hat insgesamt nur 5 Wohneinheiten und ist nur wenige Gehminuten vom Ortszentrum entfernt.
Grünwald - eine beliebte Adresse für gehobene Ansprüche - ist eine der gefragtesten Wohngemeinden im Süden von München - eine Oase der Erholung mit großem Freizeitwert.
Innerhalb dieser Gemeinde zeichnet sich die Wohnung durch die Lage aus. Spaziergänge im Grünen beginnen direkt vor dem Haus und führen Sie durch wunderschöne Wälder geradewegs zur Isar. Bei aller Beschaulichkeit ist die Adresse trotzdem gut angebunden: der Marktplatz, das Zentrum Grünwalds, liegt nur ein kleines Stück entfernt. Hier befinden sich alle Einkaufs- und Sportangebote, gute Restaurants, Banken, Ärzte etc. Die Straßenbahnlinie 25 bringt Sie im 10-Minutentakt ins Zentrum bzw. zu den U-Bahnen 1 Wettersteinplatz und 2 Silberhornstraße sowie S-Bahnen Rosenheimer Platz.
Ganz besonders hervorzuheben ist der hohe Freizeitwert der Gemeinde: Grünwald macht seinem Namen alle Ehre. Zusätzlich zum Grünwalder Forst und den Isarauen locken als weitere Naherholungsziele der Starnberger See zum Baden und zu einem Ausflug ins wunderschöne oberbayerische Voralpenland starten Sie sozusagen - auch mit dem Rad - aus der ersten Reihe.
Über die Tölzer Straße geht es direkt nach Süden in Richtung Bad-Tölz oder Tegernsee, über die Oberhachinger Straße in östlicher Richtung geht es zu den Autobahnen Richtung Stuttgart, Nürnberg und Salzburg.
Bezug
Die Wohnung steht ab sofort zur Anmietung.
Provision
Alle genannten Angaben zur Wohnung beruhen auf Informationen des Vermieters. Zwischenvermietung und Irrtum müssen wir uns vorbehalten.
Sonstiges
Die Kaution beträgt 3 Nettomonatsmieten
Energieangaben Energieverbrauchsausweis Baujahr 1994 Befeuerungsart Erdgas, Energieverbrauch incl. Warmwasser Endenergieverbrauch 191KWh/(m².a) Energieeffizienzklasse F
Details
| Gesamtfläche | 0.00 qm |
| Wohnfläche | 84.00 qm |
| Nebenkosten | 230.00 Euro |
Ausstattung
| Badezimmer | 1 |
| Schlafzimmer | 1 |
| Zimmer | 2 |
| Baujahr | 1994 |
| Stellplatz | 1 |
| Garten | ja |
| Terrasse | ja |
| Balkon | ja |
| Keller | ja |
| Dachboden | ja |
| Einliegerwohnung | ja |
| Wintergarten | ja |
| Schwimmbad | ja |
| Sauna | ja |
| Lift | ja |
| Klimaanlage | ja |
| Kamin | ja |
| Möbliert | ja |
| Teilmöbliert | ja |
| Barrierefrei | ja |